Nhà phố 2 tầng
Xây dựng nhà phố 2 tầng – Giải pháp tiết kiệm, đảm bảo chất lượng và tiến độ! Với thiết kế hiện đại, tối ưu công năng, vật liệu bền vững, chúng tôi cam kết thi công chuyên nghiệp, không phát sinh chi phí, bảo hành dài hạn. Liên hệ ngay hotline/zalo: 0917 341 516 để nhận báo giá chi tiết & tư vấn miễn phí!
Mẫu nhà 2 tầng 60m2 siêu tiết kiệm chi phí cho gia chủ
Đối với những gia chủ có diện tích xây dựng nhà cửa khiêm tốn với chiều sâu 12m. Và mặt tiền 5m thì gợi ý những mẫu thiết kế nhà 2 tầng 60m2. Dưới đây sẽ là sự lựa chọn phù hợp nhất. Mẫu nhà 5×12 này hướng đến thiết kế hiện đại, độc đáo. Đơn giản để giúp gia chủ tiết kiệm chi phí đến mức tối đa. Mà vẫn đáp ứng được công năng và thẩm mỹ. Giúp cho gia chủ sở hữu một không gian sống hoàn hảo.
-
Mẫu thiết kế nhà 2 tầng 60m2 mái lệch hiện đại
![]()
Sự kết hợp giữa màu sáng tối như màu trắng cùng màu xám và màu nâu tạo điểm nhấn nhấn nổi bật cho căn nhà hai tầng. Cửa sổ có sự kết hợp ốp giữa vật liệu nhôm cao cấp. Cùng kính cường lực để đón nhận ánh sáng tự nhiên một cách tốt nhất. Bên cạnh đó khu vực ban công rộng lớn với những mảng cây xanh. Được bố trí hợp lý tạo nên một không gian thư giãn sau những giây phút mệt mỏi.

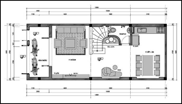
Mặt bằng tầng 1
Khoảng sân trước của tầng 1 được thiết kế khá rộng rãi để làm chỗ đậu xe và bố trí thêm những mảng cây xanh mang đến một không gian mát mẻ và thân thiện với tự nhiên. Kế đến là khu vực phòng khách được bố trí cửa sổ thông thoáng, Khu vực cầu thang ở trung tâm phòng khách và nhà vệ sinh bên dưới.
Không gian phòng ăn và phòng bếp liền kề nhau và được bố trí ở cuối bên nhà để tránh làm ảnh hưởng đến những không gian khác trong khi nấu nướng.

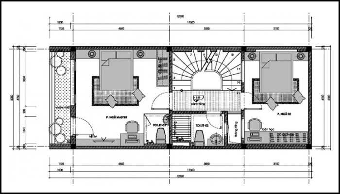
Mặt bằng tầng 2
Ngay tại khu vực cầu thang lên tầng 2 được bố trí phòng ngủ có diện tích lớn, nhà vệ sinh riêng bên trong thuận tiện. Khu vực bên phải cầu thang được bố trí thêm một phòng ngủ nhỏ nhưng đầy đủ tiện nghi, sảnh thang được tận dụng làm nhà vệ sinh để tiết kiệm không gian và giúp căn nhà trở nên rộng rãi và thoáng đãng hơn
2. Mẫu thiết kế nhà 2 tầng 60m2 nhỏ gọn
Mẫu thiết kế nhà 2 tầng 60 mét vuông dưới đây có chi phí xây dựng không quá cao, phù hợp với đề đa số các gia đình hiện nay. Tông màu chủ đạo của căn nhà là màu trắng thanh lịch, tinh tế sẽ tạo nên nét cuốn hút cho mặt tiền của căn nhà. Điểm nhấn trên tông màu trắng là những khối màu vàng và màu nâu khá thuận mắt hài hòa, mang đến một không gian gần gũi, ấm áp ấp và hiện đại.
Tầng 1 của căn nhà được chia làm 4 khu vực khác nhau, đầu tiên là phòng khách, tiếp đến là phòng bếp, phòng ngủ cuối cùng là sân sau và nhà vệ sinh.
Tầng 2 của căn nhà được bố trí gồm một phòng thờ và hai phòng ngủ có diện tích vừa phải, đầy đủ tiện nghi. Đồng thời tầng 2 cũng cũng được thiết kế thêm khu vực sân sau tương tự như tầng 1. Khu vực ban công hóng mát, thư giãn giúp kết nối các thành viên trong gia đình.
3. Mẫu thiết kế nhà 2 tầng 60m2 trẻ trung
Mẫu thiết kế nhà 2 tầng 60 m2 theo phong cách phóng khoáng và hiện đại với nội thất khỏe khoắn vuông vức. Tông màu chủ đạo của căn nhà là tông màu trung tính, tạo nên sự trẻ trung và mạnh mẽ. Cửa ra vào được sử dụng ảnh chất liệu kính trong suốt kết hợp với khung nhôm đen khá sang trọng và bắt mắt, giúp không gian căn nhà đón nhận tối đa ánh sáng tự nhiên và luôn thoáng đãng mát mẻ.
Mặt tiền căn nhà.
Tầng 1 của căn nhà được bố trí không gian khá hợp lý, vào từ cổng đi vào là khu vực sân trước, tiếp đến là sảnh chính, phòng khách, phòng bếp và phòng ăn, cuối cùng là phòng ngủ ngủ Master nhà vệ sinh chung và khu vực sân sau.
Mặt bằng tầng 1
Khu vực tầng 2 được thiết kế 2 phòng ngủ có diện tích gần bằng nhau và liền kề. Khu vực phía trước được đặt làm phòng thờ hướng ra khoảng thông tầng khá thông thoáng và mát mẻ
Mặt bằng tầng 2
4. Mẫu nhà 2 tầng 60m2 mái lệch ấn tượng
Đối với mỗi nhà hai tầng 60,2 mái lệch độc đáo có thiết kế khá hiện đại và trẻ trung. Tổng thể căn nhà là những hình khối khối vuông vức kết hợp với phần mái nhọn không cân xứng, tạo nên sự bề thế cho căn nhà. Màu sắc chủ đạo của căn nhà là màu trắng nhẹ nhàng kết hợp với màu gỗ tự nhiên hài hòa và tinh tế.
Ban công được tô điểm bởi những khu vực tiểu cảnh được bố trí hợp lý, thu hút mọi ánh nhìn, không gian khá thơ mộng và thân thiện với tự nhiên.

Mặt tiền căn nhà
Về phần công năng: Căn nhà được bố trí gồm 1 khu để xe riêng, phòng khách, phòng ăn kết hợp với phòng bếp, cuối cùng là nhà vệ sinh chung. Khi mới bước vào căn nhà, đầu tiên là phòng khách được thiết kế khá sang trọng và rộng rãi tạo cảm giác ấm cúng. Phòng ăn được ngăn cách bởi phòng khách bằng cầu thang, khu vực bếp khá rộng rãi và thông thoáng.
Mặt bằng tầng 1
Tầng 2 được bố trí gồm 2 phòng ngủ và khu vực giặt giũ, phòng ngủ lớn ăn hướng ra khu vực ban công khá thông thoáng, phòng ngủ nhỏ có diện tích vừa phải, nội thất gọn gàng đầy đủ tiện nghi và yên tĩnh rất thích hợp để nghỉ ngơi.
Mặt bằng tầng 2
5. Mẫu nhà 2 tầng 60m2 vuông vắn
Thiết kế của mẫu nhà 2 tầng 60 m2 dưới đây khá đơn giản và hiện đại. Mặt tiền căn nhà sử dụng các hình khối vuông văn đua ra một cách ấn tượng tạo điểm nhấn. Căn nhà sử dụng hai tông màu tương phản rõ rệt là màu đen và màu trắng. Để tạo nên sự cuốn hút và mới lạ.
Tầng 1 được bố trí hệ thống cửa kính lớn giúp căn nhà đón nhận ánh sáng tự nhiên tối đa. Các mảnh tường được ốp đá tự nhiên màu vàng nhạt mang lại sự sang trọng và ấm áp.
Tại tầng 2 căn nhà được thiết kế ban công đua ra. Nhằm tăng diện tích sử dụng cho ngôi nhà và tạo nên một không gian mở ấn tượng. Hệ thống lam chia được ghép bởi những thanh sắt vừa khít nhau. Có tính thẩm mỹ cao, vừa che chắn vừa tạo nên sự thông thoáng cho căn nhà. Hệ thống lan can được làm từ chất liệu kính cường lực độ bền cao, rất an toàn và đẹp mắt.
Mặt tiền căn nhà.
Tầng 1 căn nhà được thiết kế với một phòng khách rộng. Tiếp đến là phòng bếp với cầu thang ngăn cách ở giữa thuận tiện cho việc di chuyển. Gầm cầu thang được tận dụng bố trí thêm một nhà vệ sinh giúp tiết kiệm không gian. Tủ bếp được thiết kế theo chữ L dọc theo ngôi nhà.
Với kiểu thiết kế này sẽ giúp cho không gian căn nhà trở nên thoáng đãng. Mà vẫn đảm bảo đầy đủ tiện nghi, đáp ứng nhu cầu sử dụng của các thành viên trong gia đình.
Tầng 2 được bố trí riêng cho khu vực nghỉ ngơi. Bao gồm hai phòng ngủ: phòng ngủ lớn có thiết kế hướng ra ban công. Giúp đón ánh sáng tự nhiên và có độ thông thoáng cao. Phòng ngủ nhỏ được thiết kế với nhà vệ sinh riêng khép kín. Bố trí 2 cửa sổ để lấy ánh sáng tự nhiên. Kết hợp thêm một số tiểu cảnh tại sảnh thang để giúp căn nhà đỡ trống trải.
Với những mẫu nhà 2 tầng 60m2 được Công Ty CP Kiến Trúc Xây Dựng TLT.COM chia sẽ trên đây. Hi vọng sẽ giúp quý gia chủ có thể lựa chọn được mẫu nhà phù hợp nhất.
Ngoài ra, quý gia chủ còn có thể tham khảo thêm một số mẫu nhà 2 tầng ấn tượng khác tại: https://kientrucxaydungtlt.com/nha-1-tret-1-lau/
CÔNG TY CỔ PHẦN KIẾN TRÚC XÂY DỰNG TLT.COM
VPĐD: 14 Yên Thế, P.2, Q.Tân Bình, HCM
CN1: 200/78/19 Bưng Ông Thoàn, P. Phú Hữu, Thủ Đức
CN2: 57-N9, KDC Đất Mới, KP Tân Phúc, P.Tân Bình, Dĩ An, Bình Dương
CN3: Số nhà 68, hẻm 1, tổ 3B, Khu phố Hương Phước, P.Phước Tân, Biên Hòa, Đồng Nai
CN4: Đường Dk4A A - KP3A Phường Thới Hoà - TP. Bến Cát - Bình Dương
Hotline: 0976272186 | Zalo: 0917341516
Email: kientrucxaydungtlt8688@gmail.com
Website: https://kientrucxaydungtlt.com
BÀI VIẾT LIÊN QUAN
Mẫu nhà 2 tầng 1 hầm hiện đại – Tối ưu không gian, tối ưu giá xây nhà
Khám phá mẫu nhà 2 tầng 1 hầm hiện đại, tiện nghi với gara ô tô, thiết kế cá nhân hóa. TLT nhận xây nhà trọn gói – Báo giá minh bạch, thi công chuyên nghiệp.
Xem chi tiếtMẫu nhà 1 trệt 1 lầu có sân thượng 2025 – Giá xây dựng hợp lý
Khám phá các mẫu nhà 1 trệt 1 lầu có sân thượng đẹp theo nhiều diện tích và phong cách. Bảng giá xây nhà trọn gói chi tiết 2025 từ TLT – thi công tại TP.HCM và các tỉnh lân cận.
Xem chi tiếtTop 7+ Mẫu Nhà 6x10m Đẹp 2025 | Xây Nhà Trọn Gói TLT Uy Tín
Khám phá mẫu nhà 6x10m: nhà cấp 4, nhà phố 1-3 lầu, biệt thự mini. Xem phối cảnh 3D, báo giá xây nhà trọn gói & phần thô tại TP.HCM & các tỉnh lân cận. Tư vấn miễn phí - TLT: 0917 341 516.
Xem chi tiếtGiá xây nhà gác lửng mới nhất 2025 – Giải pháp tối ưu chi phí & không gian sống
Khám phá bảng giá xây nhà gác lửng mới nhất, kèm các yếu tố ảnh hưởng chi phí và lưu ý quan trọng giúp bạn xây nhà hiệu quả, tiết kiệm.
Xem chi tiếtMẫu nhà 1 trệt 1 lầu 4x18m 3 phòng ngủ - Giải pháp hoàn hảo cho tổ ấm hiện đại
Mẫu nhà 1 trệt 1 lầu 4x18m là giải pháp tối ưu cho gia đình trẻ với không gian hiện đại, tiện nghi và chi phí hợp lý. Bài viết sẽ cập nhật giá xây nhà mới nhất và gợi ý thiết kế phù hợp cho tổ ấm của bạn.
Xem chi tiếtMẫu nhà 1 trệt 1 lầu 4x16m “Xu Hướng” thiết kế hiện đại
Mẫu nhà 1 trệt 1 lầu 4x16m là xu hướng thiết kế hiện đại, tối ưu không gian và chi phí. Với cách bố trí hợp lý, ngôi nhà vẫn đảm bảo đầy đủ công năng, tiện nghi và thẩm mỹ.
Xem chi tiếtBàn giao công trình xây dựng nhà phố 2 tầng _CĐT: chị Phượng Hóc Môn
Sau nhiều ngày thi công xây dựng, TLT đã hoàn thiện và thành công bàn giao công trình nhà 2 tầng đến CĐT chị Phượng tại huyện Hóc Môn. Với đầy đủ công năng tiện nghi cho ngôi nhà, liên hệ ngay để nhận tư vấn!
Xem chi tiếtChi phí xây nhà 2 tầng 40m2 năm 2025: Những yếu tố ảnh hưởng đến giá
Thiết kế nhà 2 tầng với diện tích 4x10m (40m2) với phong cách đa dạng, đầy đủ công năng. Là giải pháp tối ưu cho không gian sống, xu hướng 2025.
Xem chi tiếtThiết kế nhà ống 2 tầng 4x20m đẹp hiện đại
Cùng Kiến Trúc Xây Dựng TLT khám phá mẫu nhà 1 trệt 1 lầu 4x20m đẹp “hút hồn”, xu hướng trong thiết kế xây dựng nhà 2025. Liên hệ ngay đến hotline/zalo: 0917 341 516 để nhận được tư vấn và báo giá cụ thể.
Xem chi tiết









