Nhà phố 3 tầng
Xây nhà phố 3 tầng trọn gói – Giải pháp tối ưu cho không gian sống hiện đại! Với thiết kế thông minh, tối ưu diện tích, thi công nhanh chóng, cam kết không phát sinh chi phí và bảo hành dài hạn. Liên hệ ngay hotline/zalo: 0917 341 516 để nhận báo giá & tư vấn miễn phí!
Thiết Kế Nhà 1 Trệt 2 Lầu 3x12m – Tận Dụng Mọi Ngóc Ngách Hiệu Quả
Với diện tích chỉ 3x12m, việc thiết kế một ngôi nhà 1 trệt 2 lầu không chỉ đòi hỏi sự sáng tạo mà còn phải tối ưu từng centimet để đảm bảo công năng và tính thẩm mỹ. Mẫu nhà này phù hợp cho gia đình nhỏ, vợ chồng trẻ hoặc những ai mong muốn một không gian sống hiện đại, tiện nghi dù diện tích hạn chế.
Tìm hiểu về mẫu nhà 1 trệt 2 lầu 3x12m ?
Mẫu thiết kế nhà 1 trệt 2 lầu 3x12m rộng rãi và thoáng đãng một cách bất ngờ dù chiều rộng chỉ vỏn vẹn 3m. Tất cả nhờ giải pháp thiết kế tối ưu. Tận dụng nguồn sáng tự nhiên để xóa bỏ giới hạn của diện tích.
1 - Đặc Điểm Thiết Kế Nhà 1 Trệt 2 Lầu 3x12m
- Diện tích nhỏ nhưng tối ưu không gian: Với 3m mặt tiền, thiết kế cần chú trọng đến việc tận dụng ánh sáng tự nhiên, bố trí nội thất thông minh và tối giản.
- Kết cấu nhà phố cao tầng: Thông thường sử dụng móng băng hoặc móng cọc để đảm bảo độ vững chắc.
- Giếng trời & cửa kính lớn giúp lấy sáng, tạo sự thông thoáng.
- Kiểu dáng hiện đại với thiết kế tối giản, sử dụng tông màu sáng và vật liệu kính, gỗ công nghiệp để mở rộng không gian trực quan.

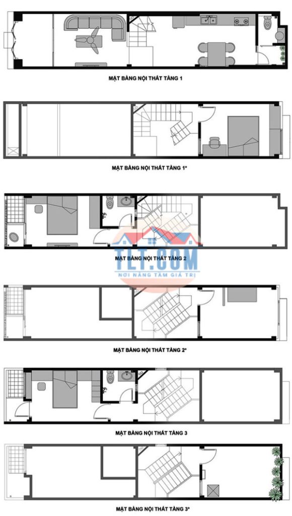
2 - Mặt Bằng Công Năng Tham Khảo
- Tầng trệt: gồm phòng khách, bếp + khu ăn uống, WC nhỏ, cầu thang giữa nhà.
- Tầng 1: gồm 2 phòng ngủ, 1 WC chung, ban công hoặc cửa sổ mở rộng ánh sáng
- Tầng 2: gồm phòng thờ (hoặc phòng ngủ thứ 3), sân thượng / khu giặt phơi, tiểu cảnh xanh (nếu có)
3 - Chi Phí Xây Dựng Nhà 1 Trệt 2 Lầu 3x12m (2025)
Chi phí xây dựng phụ thuộc vào kiểu thiết kế, vật liệu và khu vực xây dựng. Dưới đây là mức chi phí xây dựng nhà tham khảo:
Giá Xây Dựng
- Xây dựng phần thô: 3.300.000 - 3.700.000 vnđ/m2 xây dựng.
- Xây dựng trọn gói (chìa khóa trao tay): 4.850.000 - 6.300.000 vnđ/m2 xây dựng.
- Tổng diện tích xây dựng là 135m2 (bao gồm mái tôn, móng băng)
Tổng chi phí dao động từ 460 triệu - 900 triệu đồng tùy vào vật liệu hoàn thiện.
Bản vẽ thiết kế nhà ống đẹp với mặt tiền 3m

Thiết kế kiến trúc nội thất

Thiết kế nội thất nhà 3x12m

Cầu thang chính là điểm yêu thích nhất trong ngôi nhà của cả chủ nhà và kiến trúc sư.

Thiết kế giếng trời trên tầng mái giúp căn nhà lúc nào cũng tràn đầy ánh sáng.
Mặc dù nằm ở vị trí trung tâm, nhưng cầu thang không hề tạo cảm giác bí bách nhờ được đặt ngay bên dưới ô kính, tận dụng tối đa ánh sáng tự nhiên từ trên cao. Nhờ đó, khu vực cầu thang luôn thoáng đãng, sáng sủa, mang lại trải nghiệm di chuyển thoải mái giữa các tầng và các phòng. Trên thực tế, đây là khu vực thường xuyên bị bỏ quên trong thiết kế.
Phía trước nhà, một phần diện tích được bố trí làm khu vực đậu xe máy, đáp ứng nhu cầu thiết yếu của đa số gia đình. Để phân tách không gian, nền nhà tại vị trí tiếp giáp giữa phòng khách và khu vực này được giật cấp, tạo điểm nhấn đồng thời giúp không gian trở nên gọn gàng và tiện dụng hơn.

Để thích nghi với chiều rộng 3 mét, phòng khách được bố trí tối giản nhưng vẫn đảm bảo công năng. Một chiếc sofa góc kết hợp cùng bàn nhỏ xinh tạo nên không gian gọn gàng, tinh tế. Đối diện, tivi được gắn tường phía trên một chiếc kệ đơn giản có kích thước vừa phải, giúp giữ lại khoảng trống hợp lý, thuận tiện cho việc di chuyển.

Tông màu trắng đóng vai trò chủ đạo trong trang trí nội thất, mang lại cảm giác sáng sủa và rộng rãi hơn. Trong khi đó, mặt sàn sử dụng gạch xám trơn, không hoa văn, giúp không gian giữ được sự tinh tế, tối giản và tránh cảm giác rối mắt.
Bên cạnh màu sắc, vật dụng trang trí và nội thất, ánh sáng cũng là yếu tố cực kỳ quan trọng. Nhờ nguồn sáng tự nhiên và gió trời, không gian dù có diện tích khiêm tốn, được bao quanh bởi những bức tường, vẫn trở nên thoáng đãng và tươi tắn. Chính điều này giúp cải thiện đáng kể nhược điểm hạn chế về chiều ngang của ngôi nhà.

Khu vực bếp cũng tuân theo nguyên tắc bày trí tối giản, đảm bảo sự gọn gàng và tiện dụng. Mọi chi tiết đều được tính toán kỹ lưỡng, từ việc lựa chọn kiểu dáng bộ bàn ghế ăn, quầy bếp đến tủ kệ, nhằm tối ưu công năng và thẩm mỹ. Sự kết hợp giữa tông trắng cùng màu nâu nhạt của gỗ tạo nên một không gian tinh tế, hiện đại nhưng vẫn ấm cúng.

Thông qua lớp kính và khung CNC, ánh sáng xuyên suốt vào không gian, tạo nên hiệu ứng độc đáo, luôn thay đổi theo thời gian. Nhờ đó, mỗi bước di chuyển trên cầu thang trở thành một trải nghiệm thú vị, mang đến cảm giác mới mẻ cho các thành viên trong gia đình. Không chỉ hỗ trợ tích cực về mặt thể chất, mà sức khỏe tinh thần cũng được cải thiện đáng kể nhờ không gian sống tràn đầy ánh sáng tự nhiên.


Mỗi phòng ngủ được thiết kế dựa trên sở thích cá nhân của từng thành viên nhưng vẫn đồng bộ theo phong cách hiện đại. Nội thất được tối giản, đảm bảo sự sạch sẽ, gọn gàng, đồng thời giữ lại những tiện nghi cần thiết. Sự kết hợp hài hòa giữa tính thẩm mỹ và công năng giúp mỗi không gian đều trở thành nơi nghỉ ngơi lý tưởng, mang đến sự riêng tư trọn vẹn cho từng cá nhân.

Lời khuyên
- Nếu gia đình bạn đông thành viên nhưng không gian sống lại bị hạn chế
- Nếu bạn có ngân sách hạn chế nhưng vẫn mong muốn một ngôi nhà thông thoáng, tiện nghi,
- Nếu bạn đang có ý định xây dựng tổ ấm theo phong cách hiện đại, như mẫu nhà 1 trệt 2 lầu 3x12m, ...
HÃY LIÊN HỆ NGAY hotline/zalo: 0917 341 516 để được tư vấn và hiện thực hóa giấc mơ ngôi nhà của bạn!
Vì sao bạn nên lựa chọn xây nhà trọn gói tphcm của Kiến Trúc Xây Dựng TLT ?
CÔNG TY CP KIẾN TRÚC XÂY DỰNG TLT.COM là công ty xây nhà trọn gói tại TPHCM, xây dựng uy tín, hội tụ đầy đủ tiêu chuẩn của một công ty xây dựng có tâm, lựa chọn chúng tôi chính là lựa chọn sự UY TÍN – CHẤT LƯỢNG – TIẾT KIỆM – HIỆU QUẢ.
Tự hào là một trong những nhà thầu xây nhà trọn gói tphcm uy tín hàng đầu trong xây dựng nhà phố, biệt thự, khách sạn, kiến trúc, nội thất. Với đội ngũ nhân viên năng động sáng tạo, cập nhật những xu hướng mới nhất của thiết kế hiện đại trên thế giới và ở Việt Nam.
- Được hỗ trợ tư vấn miễn phí từ A tới Z, từ lúc xây dựng ý tưởng thiết kế cho ngôi nhà đến lúc hoàn thiện về ở.
- Bạn sẽ không mất thời gian cho những thủ tục pháp lý, thủ tục hành chính về xin phép xây dựng, thủ tục pháp lý trong quá trình xây dựng.
- Với xây nhà trọn gói tphcm, bạn sẽ không tốn kém về chi phí thuê người hay nhờ người thân để trông coi vật tư xây dựng, giám sát công trình.
- Được kiến trúc sư, giám sát công trình luôn sát cánh cùng quý khách hàng, đảm bảo chất lượng công trình.
- Tiết kiệm chi phí, hạn chế kinh phí phát sinh.
Kiến Trúc Xây Dựng TLT tự hào là một trong những đơn vị xây dựng hàng đầu hiện nay, sẽ là địa chỉ tin cậy có giá xây nhà trọn gói tại tphcm tốt nhất dành cho quý vị.

Với Kiến Trúc Xây Dựng TLT quý vị sẽ an tâm với dịch vụ xây nhà trọn gói. Chúng tôi cam kết không phát sinh công việc, vật thư thô luôn là vật tư chất lượng nhất.
>>>> Xem thêm Nhà 1 trệt 1 lầu 4 x 12m | Nhà 1 trệt 2 lầu 5 x 12m
CÔNG TY CỔ PHẦN KIẾN TRÚC XÂY DỰNG TLT.COM
- VPĐD: 14 Yên Thế, P.2, Q.Tân Bình, HCM
- CN1: 200/78/19 Bưng Ông Thoàn, P. Phú Hữu, Thủ Đức
- CN2: 57-N9, KDC Đất Mới, KP Tân Phúc, P.Tân Bình, Dĩ An, Bình Dương
- CN3: Số nhà 68, hẻm 1, tổ 3B, Khu phố Hương Phước, P.Phước Tân, Biên Hòa, Đồng Nai
- CN4: Đường Dk4A A - KP3A Phường Thới Hoà - TP. Bến Cát - Bình Dương
- Hotline: 0976272186 | Zalo: 0917341516
- Email: kientrucxaydungtlt8688@gmail.com
- Website: https://kientrucxaydungtlt.com
BÀI VIẾT LIÊN QUAN
Top 7+ Mẫu Nhà 6x10m Đẹp 2025 | Xây Nhà Trọn Gói TLT Uy Tín
Khám phá mẫu nhà 6x10m: nhà cấp 4, nhà phố 1-3 lầu, biệt thự mini. Xem phối cảnh 3D, báo giá xây nhà trọn gói & phần thô tại TP.HCM & các tỉnh lân cận. Tư vấn miễn phí - TLT: 0917 341 516.
Xem chi tiếtMẫu Nhà Gác Lửng Đẹp 2025 – Từ Nhà Cấp 4 Đến Biệt Thự
Khám phá bảng giá xây nhà gác lửng mới nhất, kèm các yếu tố ảnh hưởng chi phí và lưu ý quan trọng giúp bạn xây nhà hiệu quả, tiết kiệm.
Xem chi tiếtXây Nhà 1 Trệt 2 Lầu 5x10m: Chi Phí Bao Nhiêu? Cần Lưu Ý Gì?
Nhà 1 trệt 2 lầu 5x10m là lựa chọn lý tưởng cho những gia đình muốn tận dụng không gian nhỏ nhưng vẫn đảm bảo đầy đủ tiện nghi. Với diện tích 50m², thiết kế này phù hợp cho khu vực đô thị, giúp tối ưu công năng và mang đến không gian sống hiện đại.
Xem chi tiếtTại sao nên chọn mẫu nhà 1 trệt 2 lầu 5x12m?
Nhà 1 trệt 2 lầu 5x12m là mẫu nhà phổ biến tại các khu đô thị, thành phố có diện tích đất hạn chế, có thể linh hoạt trong việc lựa chọn kiểu thiết kế kiến trúc nhưng vẫn tối ưu chi phí xây dựng.
Xem chi tiếtGợi ý mẫu nhà 5x20m – Những xu hướng thiết kế nhà ở được ưa chuộng nhất
Tổng hợp những mẫu nhà 5x20m đẹp, đa dạng phong cách thiết kế với chi phí xây dựng hợp lý. TLT sẽ mang đến cho bạn những giải pháp tối ưu nhất, giúp bạn sở hữu ngôi nhà hoàn hảo.
Xem chi tiếtBàn giao dự án xây trọn gói nhà tại Bình Dương
Sau 3,5 tháng tiến hành thi công xây dựng nhà, Kiến Trúc Xây Dựng TLT vừa hoàn thiện và bàn giao dự án xây dựng nhà phố trọn gói tại Bình Dương. Với thiết kế mẫu nhà phố 1 trệt 2 lầu (hay còn được gọi là biệt thự 3 tầng) có mái thái cùng tone màu chủ đạo là trắng sáng, mang lại vẻ đẹp sang trọng tại khu vực này.
Xem chi tiếtHoàn Thiện & Bàn Giao Nhà 1 Trệt 2 Lầu Tại Quận 12 – Dịch Vụ Trọn Gói TLT
TLT xin gửi lời tri ân chân thành đến CĐT đã tin tưởng lựa chọn dịch vụ xây nhà trọn gói của TLT. Chúc cho anh và gia đình thật nhiều sức khỏe, vui vẻ và hạnh phúc bên ngôi nhà mới.
Xem chi tiếtBàn giao dự án xây nhà 1 trệt 2 lầu tại Dĩ An
Công Ty Kiến Trúc Xây Dựng TLT xin trân trọng thông báo về việc hoàn thành và bàn giao dự án xây nhà 1 trệt 2 lầu tại Dĩ An, Bình Dương. Đây là một sự kiện quan trọng, không chỉ đánh dấu sự kết thúc của một quá trình làm việc đầy tâm huyết, mà còn khẳng định sự cam kết về chất lượng và uy tín của TLT.
Xem chi tiếtBàn giao căn nhà phố trọn vẹn cho gia chủ tại Quận 12
Bàn giao công trình nhà phố trọn gói tại Quận 12 do TLT thực hiện – Hoàn thiện tổ ấm mơ ước, hỗ trợ tư vấn miễn phí.
Xem chi tiết









