Cẩm nang xây dựng
Khám phá cẩm nang xây dựng từ A-Z: hướng dẫn thiết kế, thi công, lựa chọn vật liệu và dự toán chi phí. Giải pháp tối ưu cho người chuẩn bị xây nhà!
Có gì trong căn nhà ống độc lạ ở Bình Dương?
Một căn nhà ống độc lạ tại Bình Dương có lỗi kiến trúc vô cùng ấn tượng, vừa có nét thẩm mỹ cao, thiết kế vô cùng tiện tích và hiện đại, căn nhà mang tên Boudary House.
Tọa lại tại khu vực trung tâm 3 khu công nghiệp lớn tại Bình Dương căn nhà mang đến một không gian sống lạ lẫm, mới mẽ nhờ việc sáng tạo nên những bức tường bao bọc xung quanh bằng việc đan xen giữa những viên gạch rỗng và đặc. Những viên gạch này vừa làm nhiệm vụ ngăn cách nội thất căn nhà với không gian bên ngoài và cũng là phương thức thu ánh sáng tự nhiên của căn nhà.
>>> Xem thêm: Dịch vụ xây nhà trọn gói Bình Dương

Diện tích xây dựng của căn nhà chỉ bó hẹp trong phạm vi 4x8m, đây cũng là diện tích phổ biến của những căn nhà phố bị giới hạn đât xây dựng.
Bức tường gạch của căn nhà được thiết kế với màu sắc thay đổi từ thấp đến cao và theo chức năng sử dụng của không gian

Nội thất căn nhà hầu hết đều được sử dựng từ chất liệu gỗ thân thiện, màu sắc nhẹ nhàng và tự nhiên, tạo sự dễ chịu cho người nhìn.

Khoảng không gian sân thượng ngập tràn các loại cây xanh mát, hòa mình với thiên nhiên, tạo nên không gian mở cho căn nhà.

Nội thất căn nhà được thiết kế vô cùng tối giản, hướng đến sự hiện đại và thân thiện

Nhà bếp đón nhận ánh sáng tự nhiên, các khung gạch rỗng giúp lưu thông không khí vừa giúp bảo vệ sức khỏe, vừa tạo nên sự dễ chịu, thư thái.

Mỗi căn phòng đều hướng đến sự đơn giản và hiện đại, giảm thiểu các loại vật dụng không cần thiết, sử dụng màu trắng sáng làm chủ đạo kết hợp với một số màu trầm ấm.

Kết câu lệch tầng được lựa chọn sử dụng trong điều kiện diện tích đất nhỏ hẹp giúp tối ưu diện tích nhà ở. Đồng thời khoảng cách giữa các phòng khá gần nhau thuận lợi cho những gia đình đông người hoặc có người già và trẻ em.

Bên cạnh đó, kết cấu lệch tầng còn giúp căn nhà thông thoáng, đón gió và đón sáng tốt hơn.

Nhà vệ sinh được thiết kế vô cùng thông thoáng và sạch sẽ, bài trí thiết bị vệ sinh và các vật dụng sang trọng và hiện đại.

Cầu thang hình xoắn ốc và được bao quanh bằng lớp kinh trong suốt, đặt ở vị trí gọn gàng giúp các thành viên trong gia đình dễ dàng kết nối với nhau, đồng thời tiết kiệm không gian cho căn nhà.

Mọi ngóc ngách trong căn nhà đều có thể đón nhận ánh sáng tự nhiên.

Các không gian được bài trí xem kẻ các loại cây xanh.

Sân thượng được bài trí với hệ thống cây xanh, thảm thực vật xanh mướt. Giàn leo cho cây xanh tạo bóng mát và không gian lãng mạn cho gia đình mỗi dịp đặc biệt hoặc có thể thư giản mỗi buổi tối. Hệ thống ánh sáng lãng mạn và thơ mộng như một homestay mộng mơ.

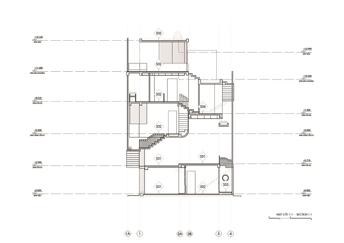
Mặt cắt của ngôi nhà cho thấy không gian được bố trí rất hài hòa, kiến trúc lệch tầng giúp căn nhà có thể bố trí được nhiều phòng ốc hơn. Lối kiến trúc hơi hướng hiện đại và hướng đến sự tiện nghi cao nhất.
Gia chủ nào mong muốn có được một không gian sống ấn tượng như ngôi nhà trên đây hãy liên hệ ngay với Công Ty CP Kiến Trúc Xây Dựng TLT.Com để được tư vấn hoàn toàn MIỄN PHÍ. Chúng tôi chuyên cung cấp dịch vụ xây nhà trọn gói Bình Dương uy tín, chất lượng, giá cả hợp lý, thiết kế ấn tượng, độc lạ.
>>>Tham khảo thêm: Báo giá xây nhà trọn gói.
Thông tin liên hệ:
CÔNG TY CP KIẾN TRÚC XÂY DỰNG TLT.COM
Điện thoại: 0976272186 | Zalo: 0917341516.
Email: kientrucxaydungtlt8688@gmail.com.
Trụ sở: 82/9 Nguyễn Phúc Chu, P 15, Q Tân Bình, TPHCM.
CN1: 14 Yên Thế, P.2, Q. Tân Bình, TPHCM.
CN2: 200/78/19 Bưng Ông Thoàn, P. Phú Hữu, Tp. Thủ Đức.
CN3: 57- N9, KDC Đất Mới, KP Tân Phúc, P. Tân Bình, Dĩ An, Bình Dương.
Website: https://kientrucxaydungtlt.com/
Nguồn hình ảnh: Archdaily
BÀI VIẾT LIÊN QUAN
Thi công đổ bê tông móng chất lượng - Thầu xây nhà phần thô TPHCM
Thi công đổ bê tông móng nhà là một trong những bước quan trọng trong việc xây dựng nhà của, đảm bảo móng nhà đủ chắc chắn để chịu tải trọng của toàn bộ công trình. Quy trình này yêu cầu kỹ thuật cẩn thận và tuân thủ đúng tiêu chuẩn xây dựng. Dưới đây là các bước cơ bản:
Xem chi tiếtGiếng trời nhà phố đẹp – Lưu ý khi thiết kế và thi công giếng trời
Bạn đang tìm kiếm giải pháp cho căn nhà phố của mình trở nên thoáng mát và đón lấy ánh sáng tự nhiên vào trong nhà? Thiết kế và thi công giếng trời chính là giải pháp hoàn hảo cho ngôi nhà của bạn.
Xem chi tiếtMóng băng 1 phương là gì? Cấu tạo ra sao – và những lưu ý khi thi công móng băng 1 phương
Móng nhà là một phần kết cấu quan trọng chịu toàn bộ tải trọng của một ngôi nhà, nên khi xây dựng móng nhà cần phải lựa chọn kỹ lưỡng phù hợp với điều kiện, đặc điểm địa chất đất. Hãy cùng kiến trúc TLT tìm hiểu móng băng 1 phương là gì? Kết cấu móng, và cách tính chi phí như thế nào qua bài viết dưới đây.
Xem chi tiếtCác Mẫu Nhà Cấp 4 Mái Thái Đẹp – Hiện Đại – Chi Phí Xây Dựng Hợp Lý
Những mẫu nhà mái Thái cấp 4 rất được ưa chuộng ở nông thôn. Ngày nay được thiết kế đa dạng hơn khi kết hợp với nhiều phong cách thiết kế khác, tạo cảm giác mơi mẽ và không nhàm chán. Sau đây, kiến trúc xây dựng TLT sẽ gửi đến bạn Top những mẫu nhà mái Thái cấp 4 đẹp được ưa chuộng nhất hiện nay.
Xem chi tiếtMóng cọc là gì? Giải đáp phương pháp tính toán thi công – Phân Loại – Kết cấu móng cọc
Xây dựng một ngôi nhà an toàn và kiên cố đòi hỏi phải có nền móng vững chắc. Trong đó, móng cọc là loại móng cực kỳ phổ biến thường được dùng để xây dựng nhà phố đảm nhận chức năng chịu lực toàn bộ ngôi nhà.
Xem chi tiếtCó nên xây nhà trọn gói hay tự xây dựng nhà? Phân tích ưu nhược điểm khi xây nhà trọn gói
Vậy trong bài viết này, chúng tôi sẽ phân tích ưu nhược điểm của việc xây nhà trọn gói và tự xây nhà, cùng với những kinh nghiệm xây nhà trọn gói. Từ đó, giúp quý khách có cái nhìn tổng quan và đưa ra quyết định phù hợp cho gia đình mình.
Xem chi tiếtTop 10+ mẫu nhà một trệt một lầu được quan tâm hiện nay
Mẫu nhà một trệt một lầu mang phong cách hiện đại, chi phí phù hợp với đa dạng phân khúc khách hàng nên rất được quan tâm trong thời điểm hiện tại. Đặc biệt là nhiều chủ đầu tư ở các khu vực thành phố. Để chia sẻ kinh nghiệm và mẫu thiết kế nhà một lầu, mời quý khách hàng cùng tham khảo qua bài viết dưới đây nhé.
Xem chi tiếtGợi ý thiết kế nhà vệ sinh nhỏ đủ tiện nghi
Nhà vệ sinh là một trong những không gian quan trọng trong nhà. Tùy theo nhu cầu và sở thích, nhiều chủ nhà sẵn sàng chi tiêu rất nhiều ngân sách. Cho không gian giúp mình rũ bỏ mệt nhọc sau một ngày dài. Nếu bạn đang có ý định xây dựng nhà trọn gói hcm hoặc sửa nhà vệ sinh. Nhưng chưa tìm được ý tưởng thiết kế nhà vệ sinh nhỏ đủ tiện nghi, hãy tham khảo qua bài viết này nhé!.
Xem chi tiếtThứ tự thi công các hạng mục hoàn thiện bàn giao nhà mới
Bạn vừa mới xây nhà phần thô xong và đang chuẩn bị bước vào giai đoạn hoàn thiện. Để quá trình hoàn thiện nhà được thuận lợi, đúng tiến độ và tránh được những phát sinh không cần thiết. Thì bạn phải biết cách sắp xếp các hạng mục thi công sao cho hợp lý và không bị chồng chéo nhau.
Xem chi tiết






