Công trình thi công
TỔng hợp những dự án/ công trình thi công xây dựng nhà tại Kiến Trúc Xây Dựng TLT, từ nhà cấp 4, nhà phố đến nhà biệt thự. Công trình mở rộng tại các khu vực TP.HCM, Bình Dương, Đồng Nai, Long An,... Liên hệ ngay hotline/zalo: 0917 341 516 để nhận tư vấn và báo giá chi tiết.
Dự Án: Thiết Kế Và Thi Công Xây Dựng Biệt Thự Trọn Gói Tại Bình Phước
Tiếp bước cho những ngôi nhà được Công Ty Cổ Phần Kiến Trúc Xây Dựng TLT thi công hoàn thiện trọn gói tại Bình Phước. Quý khách cần hỗ trợ tư vấn hay báo giá xây nhà trọn gói xin liên hệ theo hotline: 0976272186. Để công ty hỗ trợ cung cấp bảng báo giá bóc tách từng hạng mục theo nhu cầu xây dựng.
Thông tin dự án xây nhà biệt thự trọn gói tại Bình Phước
- Gói thầu thi công xây dựng: Dự Án Xây Biệt Thự Trọn Gói Chìa Khóa Trao Tay.
- Loại hình kiến trúc xây dựng: Biệt Thự Tân Cổ Điển.
- Diện tích xây dựng: 9*19m
- Loại nhà: Nhà 1 Trệt 1 Lầu
- Đơn vị thi công: Công Ty Cổ Phần Kiến Trúc Xây Dựng TLT.COM.

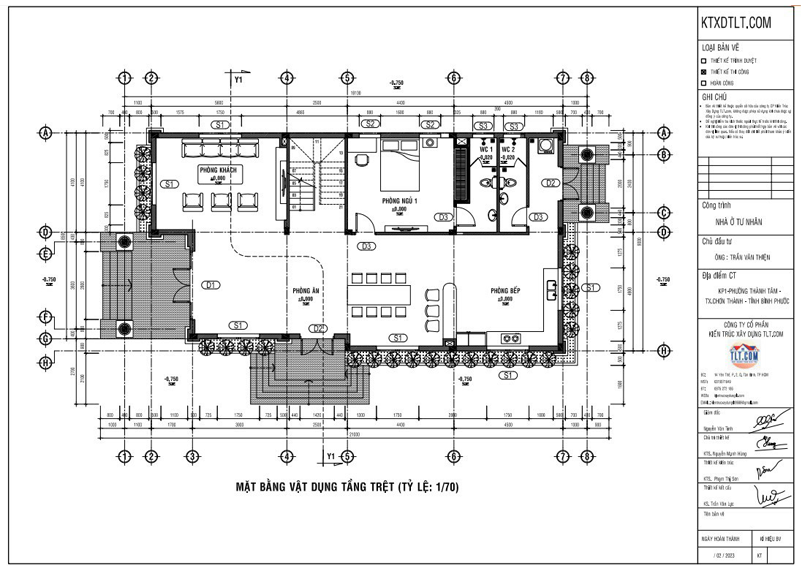
Mặt bằng công năng tầng trệt dự án thi công biệt thự nhà chú Thiện – Bình Phước

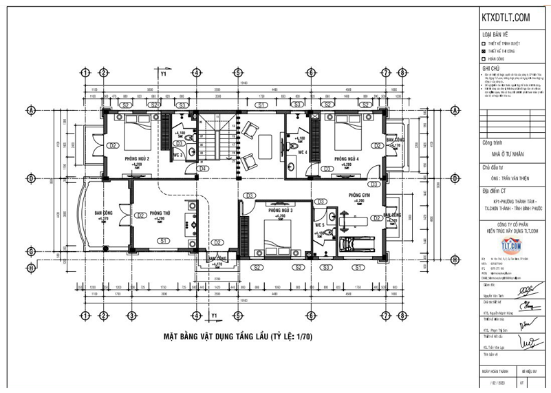
Mặt bằng công năng tầng 1 dự án thi công biệt thự nhà chú Thiện – Bình Phước
Giới thiệu sơ qua ngôi nhà của CĐT tại Bình Phước
Ngôi nhà có diện tích xây dựng 171m2/sàn. Được sử dụng loại móng băng, mái khung kèo lợp ngói, ban công lan can sắt mỹ nghệ cao cấp. Ngôi nhà được bố trí 2 mặt tiền cùng nhiều ô cửa sổ lớn giúp lưu thông ánh sáng và gió tự nhiên tạo ra không gian sống thoáng mát.
- Công năng sử dụng của căn nhà gồm: Tầng trệt có gara để xe, phòng khách lớn, phòng bếp, phòng ăn, phòng ngủ và phòng sinh hoạt chung.
- Tầng lầu của ngôi nhà được bố trí với ban công, phòng thờ, 3 phòng ngủ, phòng thể dục và các phòng vệ sinh.
- Gia đình chú mong muốn ngôi nhà của mình được thiết kế theo phong cách hiện đại, sang trọng nhưng vẫn mang nét truyền thống. Do đó, kiến trúc sư đã lựa chọn sử dụng các đường nét thiết kế hiện đại kết hợp với truyền thống mang lại sự tinh tế và toát lên sự sang trọng của ngôi nhà.
- Ngoài ra, bên trong ngôi nhà được trang trí bằng gỗ làm chủ đạo như ốp trần, cầu thang, tủ, kệ và cửa chính tạo nên sự uy nghi tráng lệ cho ngôi nhà.
- Quá trình thi công dự án được thực hiện bởi đội ngũ kỹ sư, đội ngũ thợ lành nghề, có kinh nghiệm lâu năm của Công Ty Cp Kiến Trúc Xây Dựng TLT. Công trình được thi công đúng tiến độ, đảm bảo chất lượng và an toàn.
- Sau 4 tháng thi công, ngôi biệt thự đã hoàn thành và được bàn giao. Gia đình CĐT rất hài lòng với chất lượng công trình và dịch vụ của công ty.
TLT sử dụng vật liệu xây dựng chất lượng cao, có nguồn gốc xuất xứ rõ ràng, được kiểm định nghiêm ngặt trước khi đưa vào sử dụng. Đội ngũ kỹ sư, công nhân lành nghề, có kinh nghiệm lâu năm, được đào tạo bài bản, đảm bảo thi công đúng kỹ thuật, đảm bảo chất lượng công trình.
- TLT giúp khách hàng tiết kiệm chi phí xây dựng nhờ việc tối ưu hóa chi phí vật liệu, nhân công, thời gian thi công,… ngoài ra, TLT còn cung cấp nhiều chương trình ưu đãi hấp dẫn khi thi công xây dựng.
- Với dịch vụ xây nhà trọn gói, khách hàng chỉ cần cung cấp ý tưởng thiết kế, TLT sẽ thực hiện tất cả các công đoạn từ thiết kế, thi công, hoàn thiện,… khách hàng không cần lo lắng bất cứ vấn đề gì khi thi công xây dựng.
- Giá cả cạnh tranh cao tại khu vực, miễn phí hồ sơ thiết kế, giấy phép xây dựng cùng nhiều ưu đãi khi sử dụng dịch vụ. Bảo hành công trình dài hạn, bảo dưỡng nhanh chóng kịp thời khi có thông tin khách hàng phản hồi.
Mọi chi tiết xin liên hệ để được hỗ trợ miễn phí 24/7.
Công Ty CP Kiến Trúc Xây Dựng TLT.COM
Điện Thoại: 0976272186 | Zalo: 0917341516.
Email: kientrucxaydungtlt8688@gmail.com
Website: https://kientrucxaydungtlt.com
Văn Phòng: Số 51 Đường Số 3, Khu Đô Thị Vạn Phúc, QL13, P. Hiệp Bình, TP.HCM.
CN1: 200/78/19 Bưng Ông Thoàn - P. Phú Hữu - TP. Thủ Đức - TPHCM.
CN2: Số 68 - Hẻm 1 - Tổ 3B - KP Hương Phước - P. Phước Tân - TP Biên Hòa - Đồng Nai.
CN3: Đường Dk4A - Kp3A - P. Thới Hoà - TP. Bến Cát - Bình Dương.
Xưởng cơ khí - nội thất: 261A Bưng Ông Thoàn - P. Tăng Nhơn Phú, TP. Thủ Đức, TP.HCM.
Một số hình ảnh thi công – nghiệm thu – bàn giao công trình xây nhà biệt thự tại Bình Phước – GD chú Thiện

















Xem thêm về giá xây nhà trọn gói Long An, xây nhà trọn gói Tiền Giang, xây nhà trọn gói Bến Tre, xây nhà trọn gói Đồng Nai, xây nhà trọn gói Bình Dương.
BÀI VIẾT LIÊN QUAN
Bàn giao công trình hoàn thiện biệt thự tại Bến Tre
Một công trình hoàn thiện biệt thự thực tế đã chính thức bàn giao lại cho gia chủ tại Bến Tre là một niềm vui to lớn đối với đội ngũ Kiến Trúc Xây Dựng TLT. S’s Villa, một ngôi nhà nằm trên KDC Hưng Phú, tại Bến Tre. Xem chi tiết ngay tại bài viết này!
Xem chi tiếtDự Án: Thiết Kế Và Thi Công Xây Dựng Biệt Thự Trọn Gói Tại Bình Phước
Tiếp bước cho những ngôi nhà được Công Ty Cổ Phần Kiến Trúc Xây Dựng TLT thi công hoàn thiện trọn gói tại Bình Phước. Quý khách cần hỗ trợ tư vấn hay báo giá xây nhà trọn gói xin liên hệ theo hotline: 0976272186. Để công ty hỗ trợ cung cấp bảng báo giá bóc tách từng hạng mục theo nhu cầu xây dựng.
Xem chi tiếtCập nhật tiến độ xây nhà phần thô Chú Thiện ở Bình Phước
Giữa tháng 12/2022 Chú Thiện có nhu cầu xây nhà. Và biết tới công ty thông qua việc tìm hiểu các công ty xây nhà phần thô tại Bình Phước uy tín. Sau khi tìm hiểu kỹ Chú Thiện đã tiến hành ký hợp đồng xây nhà với Kiến Trúc Xây Dựng TLT. Công Ty rất cảm ơn Chú Thiện và gia đình đã tin tưởng. Và lựa chọn Kiến Trúc Xây Dựng TLT làm người bạn đồng hành. Cùng biến ước mơ về ngôi nhà hoàn hảo của Chú thành hiện thực.
Xem chi tiếtKhởi công xây dựng biệt thự tại Bình Phước – Xây nhà phần thô Chú Thiện
Sau khi hoàn thiện hồ sơ thiết kế công trình xây dựng biệt thự Chú Thiện, Công Ty CP Kiến Trúc Xây Dựng TLT. COM cùng chủ đầu tư tiến hành ép cọc khởi công xây dựng nhà biệt thự 1 trệt 1 lầu, tại Bình Phước.
Xem chi tiếtXây Biệt Thự Trọn Gói Biên Hòa Đồng Nai – Uy Tín, Chuyên Nghiệp
Xây dựng biệt thự nhà anh Nam thuộc mẫu biệt thự tân cổ điển 2 tầng diện tích xây dựng 250m2 có thiết kế tinh tế và sang trọng, thể hiện sự đẳng cấp của chủ đầu tư.
Xem chi tiết









