Biệt thự, nhà vườn
Xây dựng nhà biệt thự, nhà vườn – Không gian sống đẳng cấp, gần gũi thiên nhiên! Thiết kế sang trọng, tiện nghi, thi công chất lượng, cam kết không phát sinh chi phí, bảo hành dài hạn. Liên hệ ngay hotline/zalo: 0917 341 516 để nhận tư vấn & báo giá miễn phí!
Top những mẫu biệt thự 2 tầng đẹp đang thịnh hành nhất hiện nay
Một công trình hoàn thiện biệt thự thực tế đã chính thức bàn giao lại cho gia chủ tại Bến Tre là một niềm vui to lớn đối với đội ngũ Kiến Trúc Xây Dựng TLT. S’s Villa – một ngôi nhà nằm trên KDC Hưng Phú – Nguyễn Thị Định – Bến Tre với diện tích 9.8×11.8m có kết cấu 1 trệt 1 lửng 2 lầu. Công trình với lối thiết kế đơn giản nhưng vẫn tạo được ấn tượng với những đường nét mang đậm dấu ấn gia chủ.
- Chủ đầu tư: Mr. Sung.
 - Địa chỉ: KDC Hưng Phú – Nguyễn Thị Định – Bến Tre.
 - Diện tích: 9.8×11.8m.
 - Số tầng: 04 tầng.
 - Thiết kế & thi công: Kiến Trúc TLT.
 
Mặt tiền nổi bật và ấn tượng bởi màu trắng tinh khôi
Căn biệt thự với diện tích khá rộng nên các KTS và KS đã đưa ra những phương án tốt nhất tư vấn đến chủ đầu tư về thiết kế – kết cấu hoàn thiện biệt thự. Thông thường, đối với một căn biệt thự thì mặt tiền luôn được quan tâm và chú trọng tới bởi nó sẽ thu hút mọi ánh nhiền và khẳng định địa vị của gia chủ.
Vì thế mặt tiền của căn biệt thự S’s Villa được TLT tính toán tỉ mỉ trong từng chi tiết phào chỉ với các mảng kiến trúc rõ ràng và những khoảng tường trắng để tôn lên sự sang trong và thanh lịch cho căn biệt thự.
Công năng căn biệt thự được tối ưu một cách thông minh
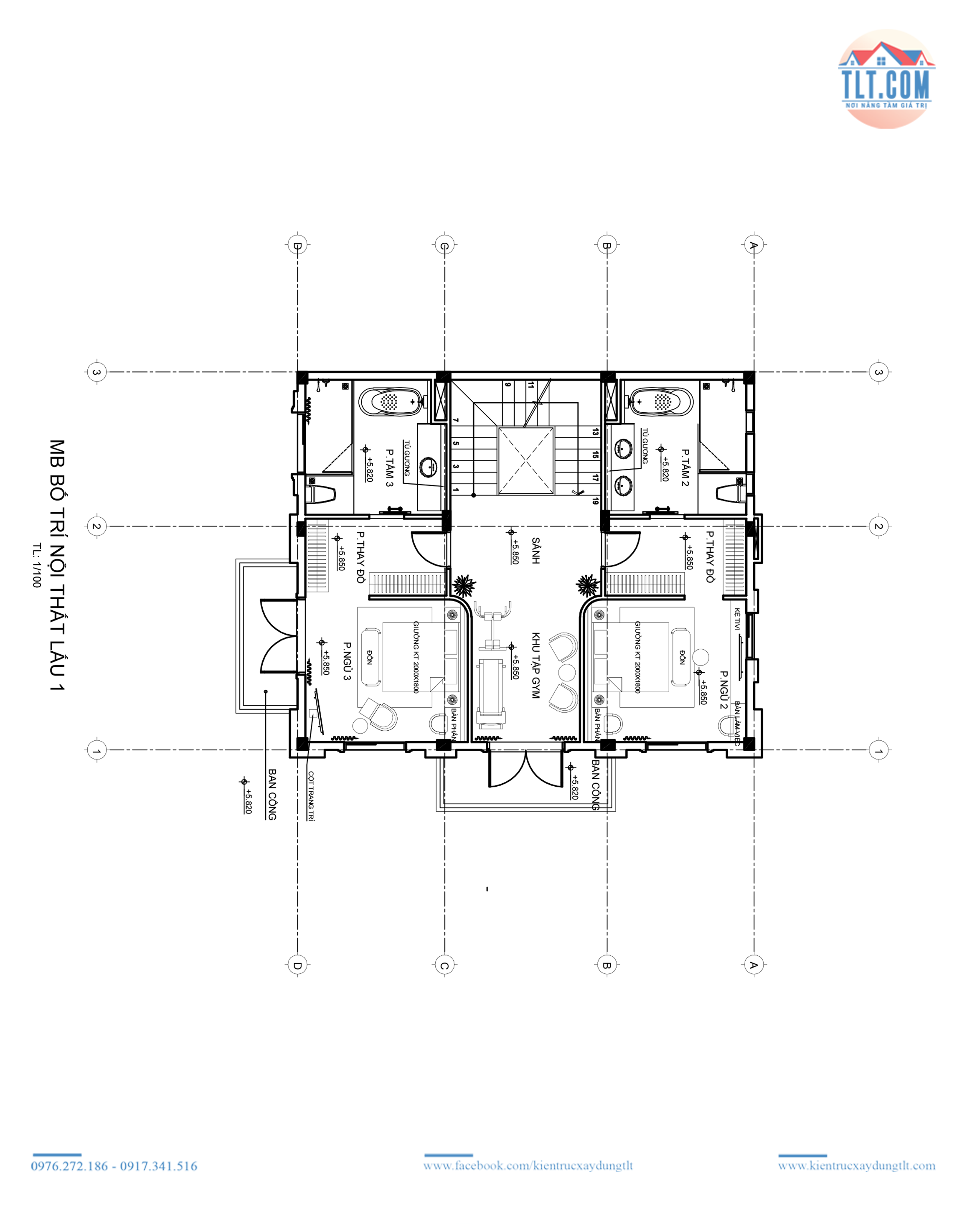
Để tạo ra một không gian hiện đại, tiện nghi đồng thời tạo nên sự thoáng đãng, mát mẻ và rộng rãi cho căn biệt thự các kiến trúc sư, kỹ sư kết cấu đã lên phương án tính toán kỹ lưỡng để tạo nên sự ưu việt. Có thể nói, S’s Villa là một căn biệt thự có công năng tối ưu nhờ vào việc bố trí và sắp xếp nội thất một cách khoa học, và thông minh.
Để giúp khách hàng của TLT dễ hình dung, mời mọi người cùng tham khảo qua mặt bằng công năng nhà S’s Villa phía dưới:
 
 
 
Hình ảnh thiết kế mặt bằng công năng nhà S’s Villa
Chặn đường hoàn thiện biệt thự tại Bến Tre nhà anh Sung
Với một căn biệt thự 4 tầng như gia đình anh Sung, Kiến Trúc TLT đã chứng minh cho việc thực hiện hoàn thành căn biệt thự theo đúng cam kết, với tinh thần trách nhiệm và tính kỷ luật của mình.

Bàn giao biệt thự cho gia đình anh Sung – Bến Tre
TLT xin gửi lời cảm ơn đến gia đình anh Sung đã tin tưởng và đồng hành cùng chúng tôi trên chặn đường này. Chúng tôi tin rằng, để được khách hàng tin tưởng là một việc không dễ dàng. Đồng thời, với TLT mỗi chặn đường hoàn thiện căn biệt thự là một niềm vui và là một động lực để TLT cố gắng và phát triển các sản phẩm – dịch vụ chất lượng nhất đến với khách hàng.
Nếu quý khách đang có nhu cầu tìm kiếm một đơn vị thiết kế và thi công trọn gói uy tín trên địa bàn TPHCM, Bến Tre,… và các tỉnh thành lân cận, hãy liên hệ ngày Kiến Trúc TLT. Đội ngũ tư vấn viên tại TLT sẽ nhanh chóng liên hệ và gửi bản báo giá xây nhà trọn gói chi tiết nhất tới khách hàng.
>>> Mời xem thêm: giá xây nhà trọn gói Bến Tre, giá xây nhà trọn gói Tiền Giang, giá xây nhà trọn gói Long An, giá xây nhà trọn gói Bình Dương, giá xây nhà trọn gói Đồng Nai, giá xây nhà trọn gói TPHCM.
CÔNG TY CP KIẾN TRÚC XÂY DỰNG TLT.COM
Điện Thoại: 0976272186 | Zalo: 0917341516.
Email: kientrucxaydungtlt8688@gmail.com
Website: https://kientrucxaydungtlt.com
Văn Phòng: Số 51 Đường Số 3, Khu Đô Thị Vạn Phúc, QL13, P. Hiệp Bình, TP.HCM.
CN1: 200/78/19 Bưng Ông Thoàn - P. Phú Hữu - TP. Thủ Đức - TPHCM.
CN2: Số 68 - Hẻm 1 - Tổ 3B - KP Hương Phước - P. Phước Tân - TP Biên Hòa - Đồng Nai.
CN3: Đường Dk4A - Kp3A - P. Thới Hoà - TP. Bến Cát - Bình Dương.
Xưởng cơ khí - nội thất: 261A Bưng Ông Thoàn - P. Tăng Nhơn Phú, TP. Thủ Đức, TP.HCM.
Một số hình ảnh thi công công trình nhà anh Sung Bến Tre































BÀI VIẾT LIÊN QUAN
Top những mẫu biệt thự 2 tầng đẹp đang thịnh hành nhất hiện nay
Nền kinh tế ở Việt Nam đang trên đà phát triển vượt bậc khiến nhu cầu xây dựng nhà ở tăng cao. Trong đó, nhu cầu sở hữu một biệt thự 2 tầng được nhiều gia đình mơ ước, các mẫu biệt thự 2 tầng hiện đại, tính ứng dụng cao, không gian rộng rãi, thoải mái, tiện nghi thể hiện cá tinh riêng của mỗi chủ đầu tư.
Xem chi tiết
        
                                    
                                                    
                                                    
                                                    
                                                    
                                                    
                                                    
                                                    
                                                    
                                                    
                                                    
                                                    
                                                    
                                                    
                                                    
                                                    
                                                    
                                                    
                                                    
                                                    
                                                    
                                            
                                            
                                            
                                            
                                            
                                            








